RD Řevnice I., 2024


Jeden svah na okraji Řevnic. Tři přátelé, tři příběhy, tři domovy.

 

Rodinný dům v Řevnicích I. je první z trojice domů vyrůstajících na společném svažitém pozemku. Společně tvoří soudržný, kultivovaný celek, avšak každý z nich je individuální odpovědí na životní styl a potřeby svého majitele. Tento dům byl navržen pro mladou pětičlennou rodinu s důrazem na současný komfort, udržitelnost a dlouhodobě nízký energetický provoz — stavba proto splňuje standard pasivního domu.


Architektura a urbanistické zasazení

Dům má tři nadzemní podlaží a díky citlivému usazení do terénu se otevírá do exteriéru hned ve dvou úrovních. Fasáda z horizontálního dřevěného obkladu sjednocuje hmotu a dává vyniknout jejímu kompaktnímu tvaru. Architektura pracuje s jednoduchou kubickou formou, kterou vizuálně odlehčují dlouhé pásy oken. Ty jsou hlavním výrazovým prvkem domu, umožňují rovnoměrné nasvětlení interiéru a především poskytují panoramatické výhledy směrem ke krajině Brd.

Svažitá zahrada přirozeně navazuje na dům a plynule stoupá až k hranici lesa. Místo oplocení zde slouží modelace terénu doplněná o nenápadné výsadby trvalek a keřů, čímž se podporuje pocit otevřenosti a vzájemného soužití se sousedními domy v rámci celku tří přátel.


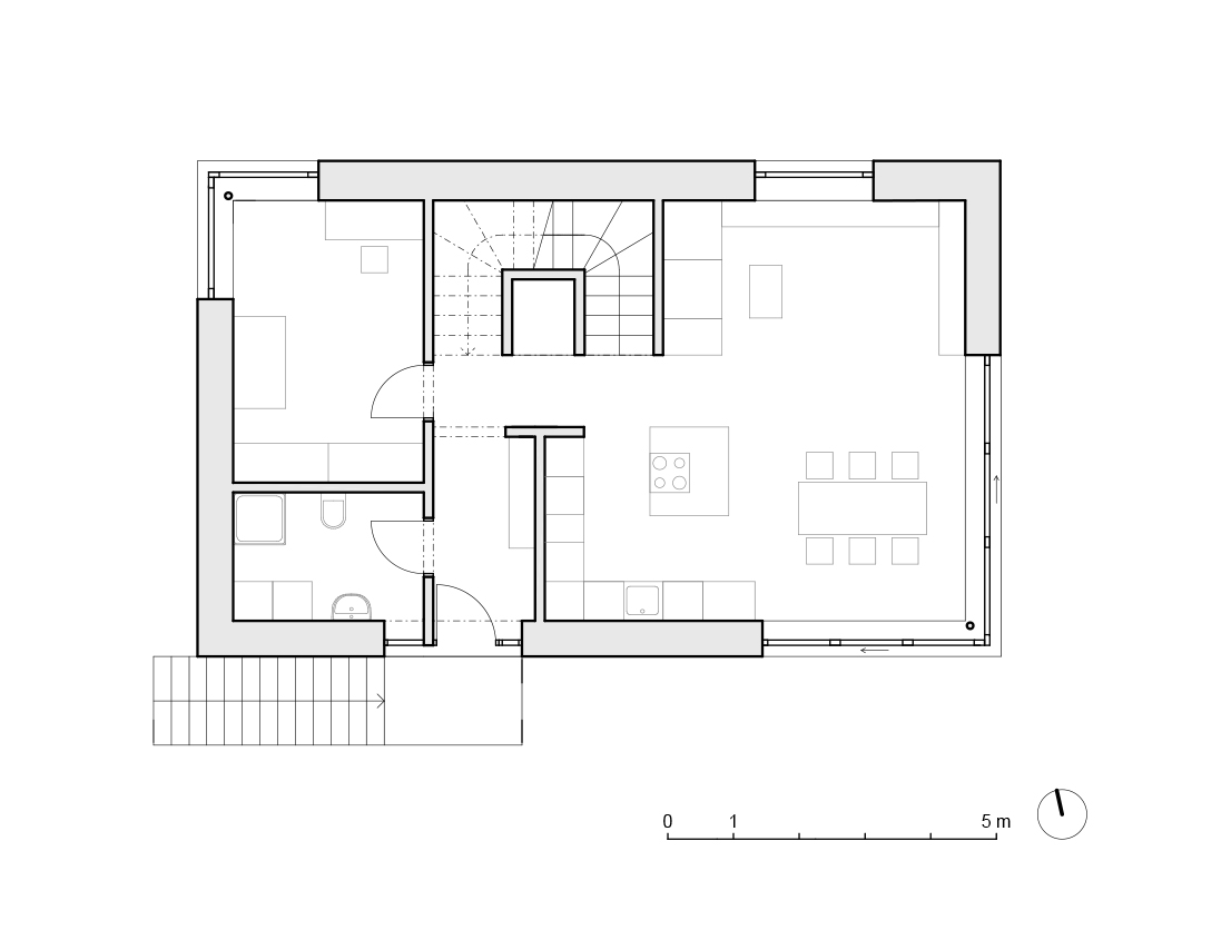
Dispoziční řešení

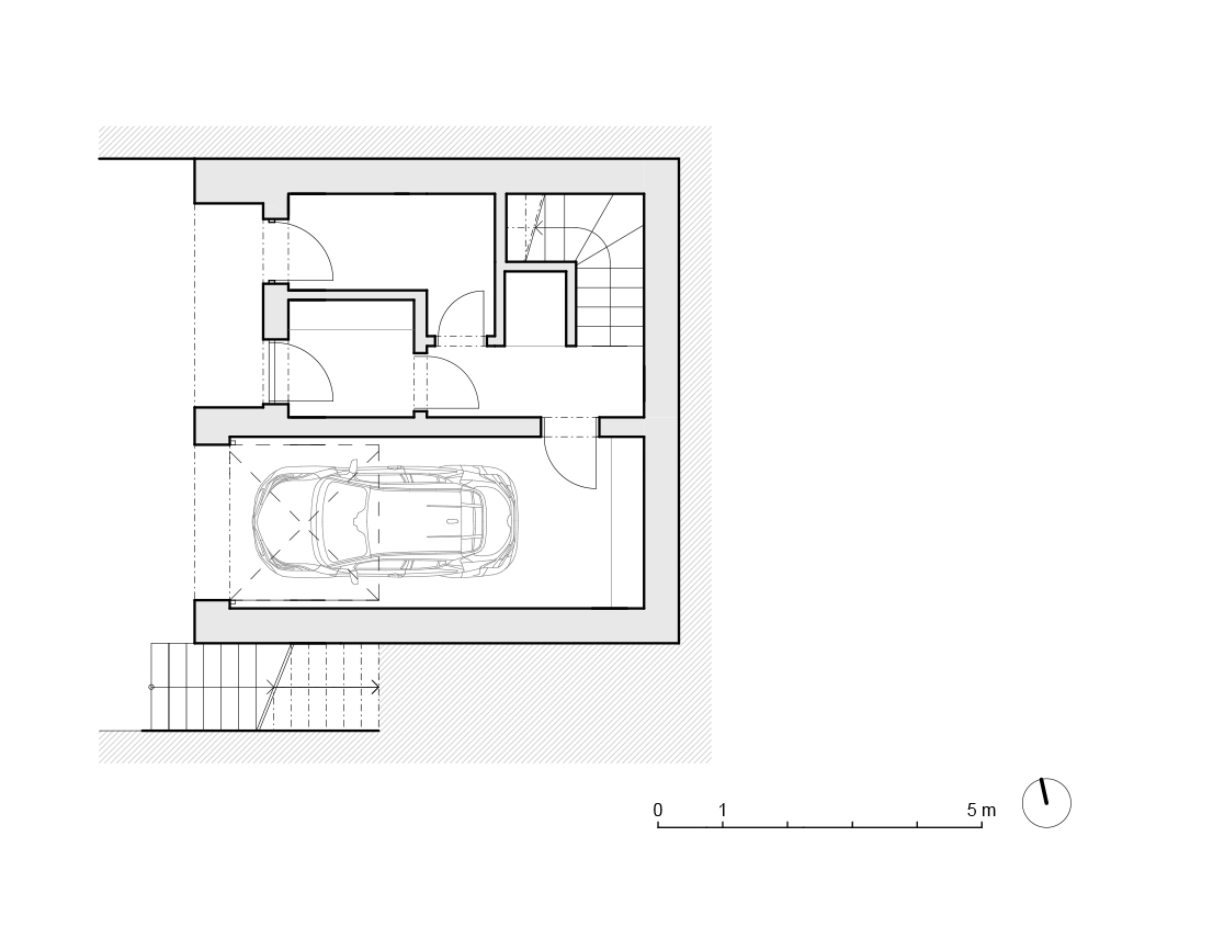
Dům disponuje dvěma vstupy — jedním pro návštěvy, vedeným po venkovním schodišti, a druhým uživatelsky komfortním vstupem přímo napojeným na garáž a zázemí. Tento praktický detail odráží každodenní provoz rodiny a zjednodušuje logistiku pohybu.

Srdcem domu je centrální obytný prostor zahrnující kuchyni, jídelnu, obývací pokoj a čítárnu. Velkoformátová rohová okna maximalizují kontakt s exteriérem a přivádějí do interiéru změkčené severní světlo. Obytný prostor navazuje na terasu, která funguje jako prodloužený obytný pokoj během teplých měsíců.

Ve stejném podlaží se nachází také pracovna a koupelna pro hosty.

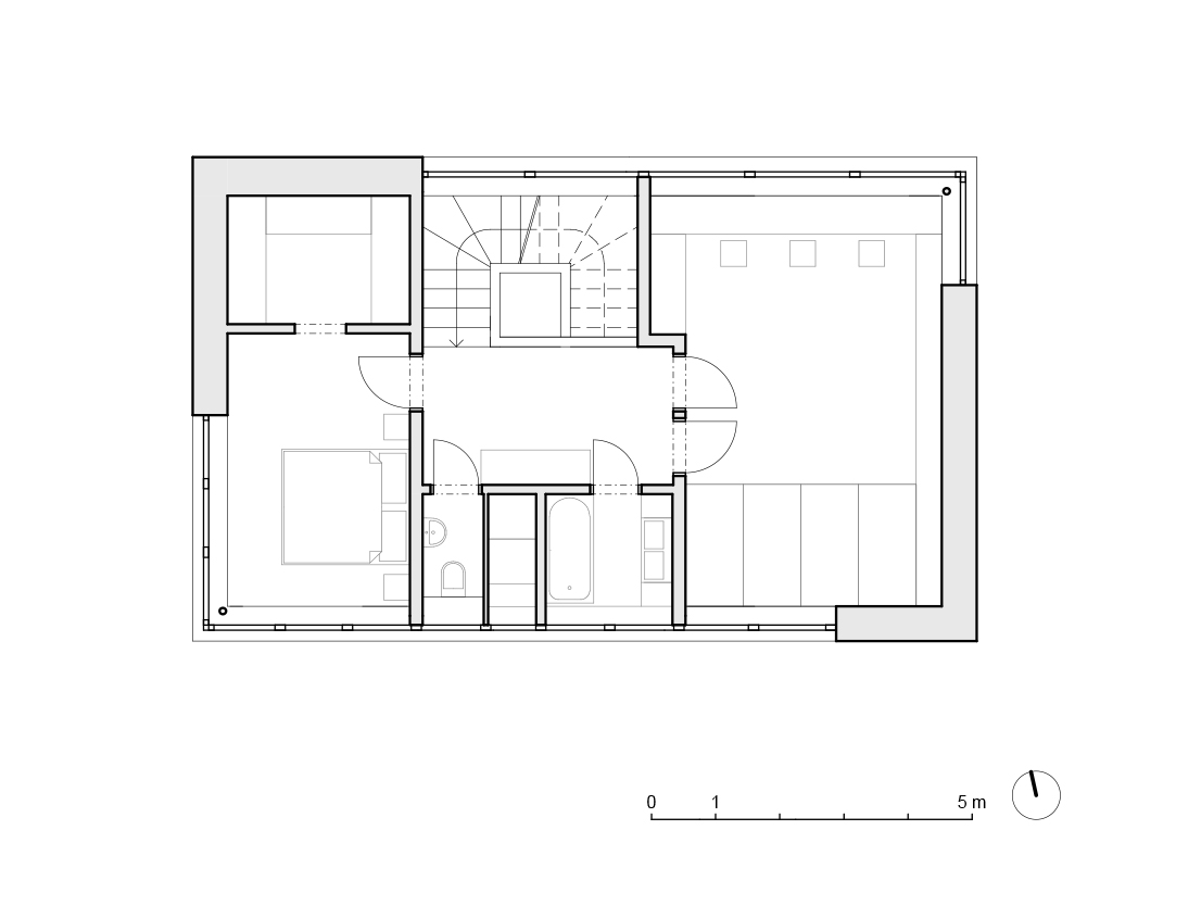
V nejvyšším patře jsou umístěny soukromé pokoje — ložnice s vlastní šatnou, dětský pokoj a koupelna rodiny. Díky pásovým oknům zde vznikají nerušené výhledy přes celé údolí.


Konstrukce a materiály

Dům je navržen jako dřevostavba s masivními dřevěnými stropy, které přinášejí do interiéru přirozenou strukturu a teplo. Podlahy jsou betonové, což pomáhá stabilizovat tepelnou bilanci domu i akustický komfort. Střecha je navržena jako extenzivní zelená, takže přispívá nejen ke snížení energetické náročnosti, ale i k vizuálnímu začlenění stavby do krajiny.

Exteriér charakterizuje rytmický dřevěný obklad, který časem získá přirozenou patinu a ještě více splyne s okolím.


Interiér

Interiér představuje harmonicky komponovaný obytný prostor kombinující současnou estetiku s jemným skandinávským výrazem. Dominantou je velkorysé propojení kuchyně a jídelny, akcentované přirozeným světlem prostupujícím skrze rozsáhlé prosklené plochy orientované do zahrady. Otevřenost, teplé materiály a důraz na detail vytvářejí prostředí, které je současné, udržitelné a zároveň hluboce domácí.

 

----------------------------------

rok realizace: 2024

lokalita: Řevnice

autoři: ATELIER HRA - MgA. Vít Šimek

realizace: Chytrý dům s.r.o.

návrh interiéru: Ing. arch. Zuzana Bartasová

nábytek na míru: Pavel Kozlíček

fotografie: Peter Fabo


© Atelier HRA. All rights reserved.